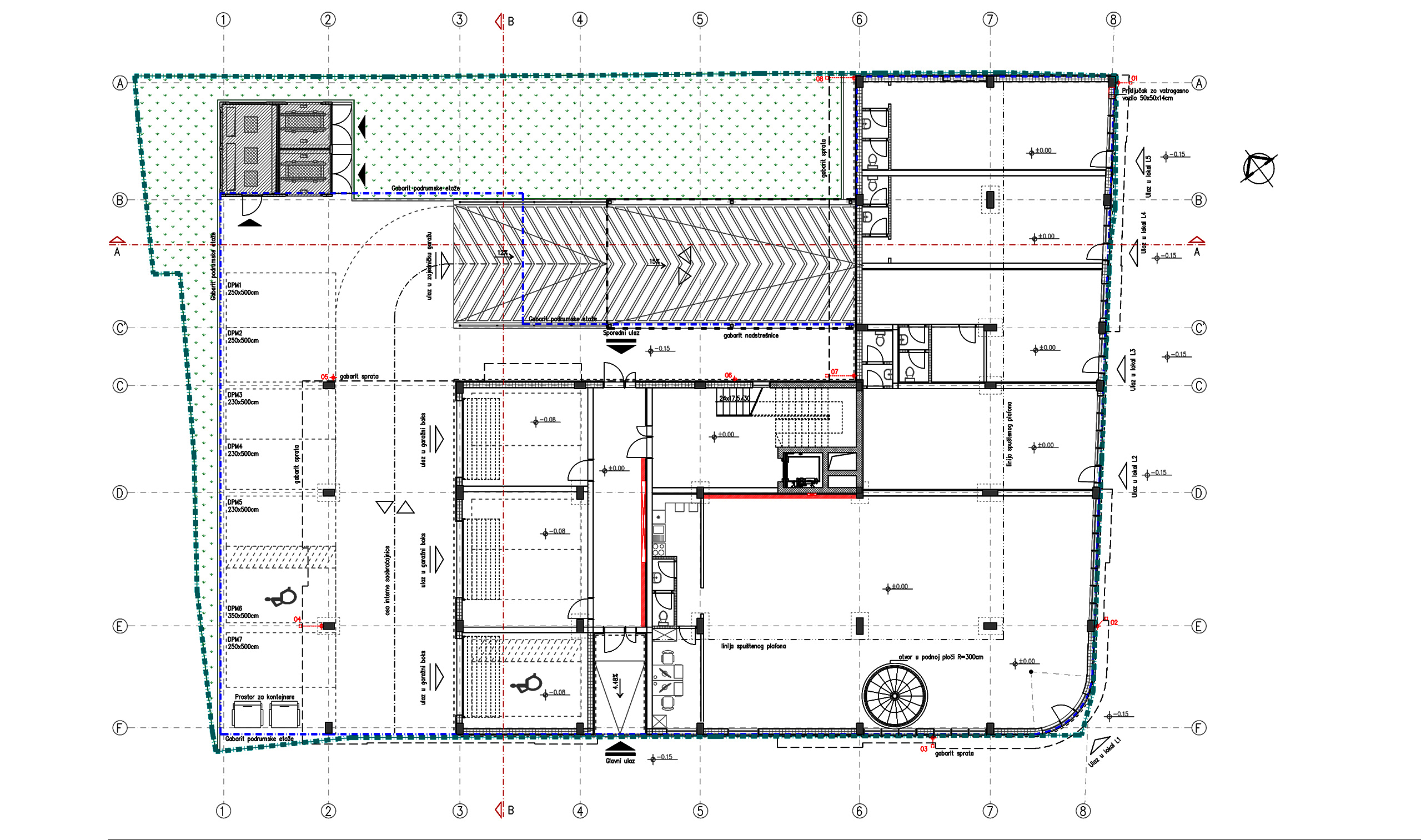
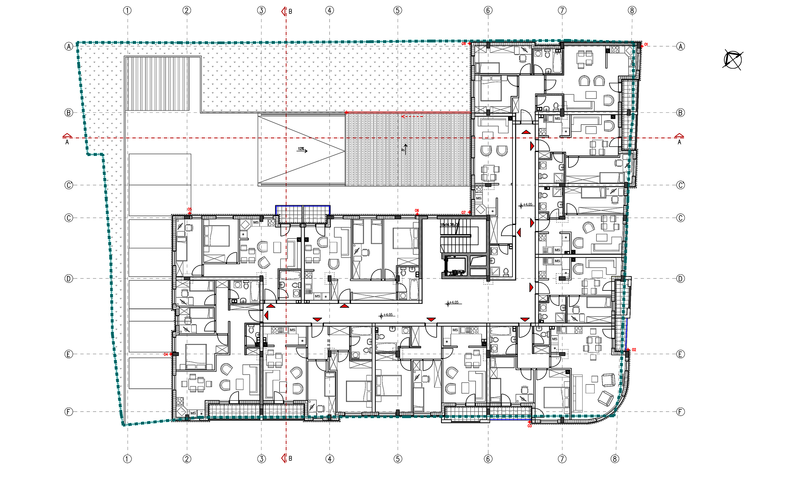
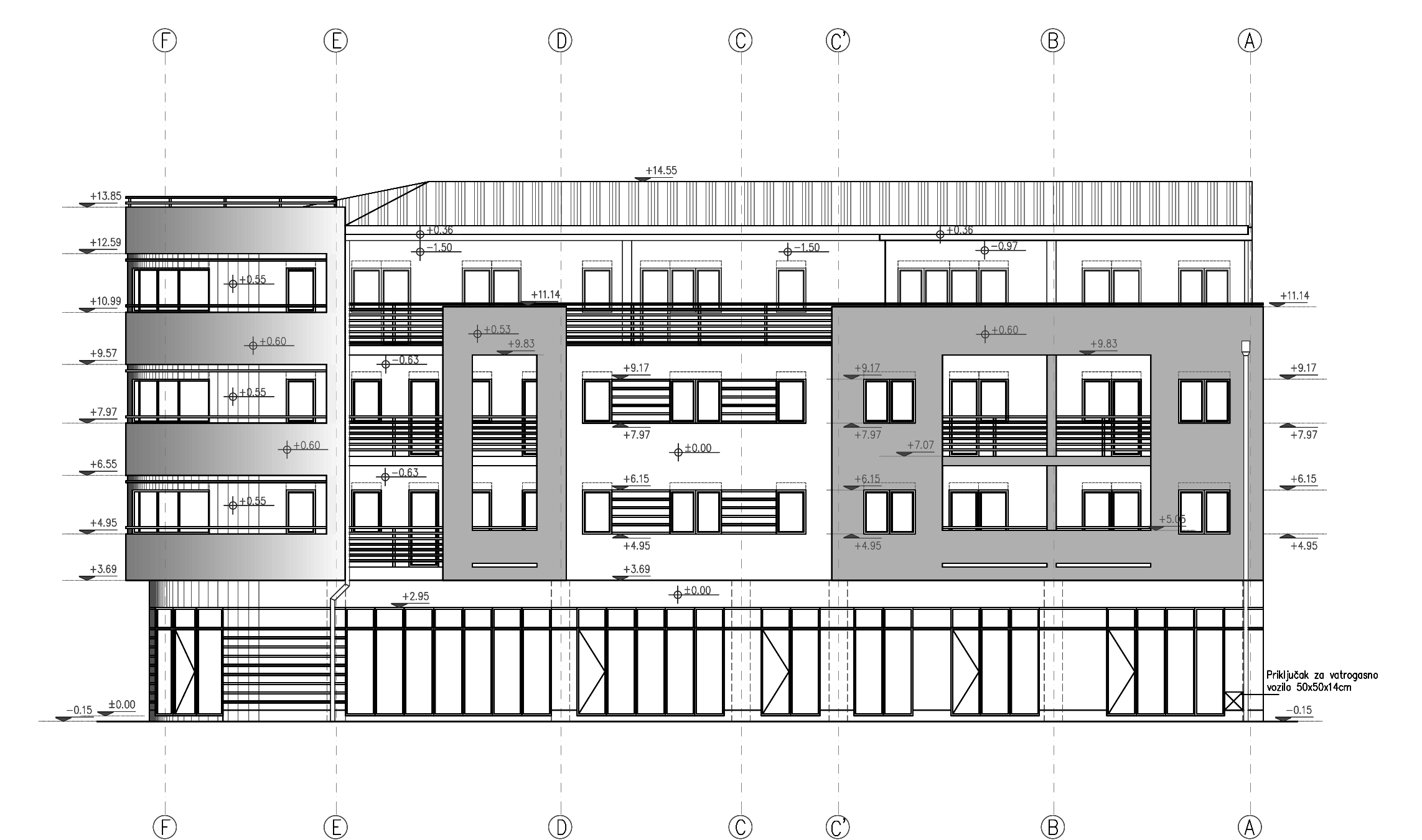
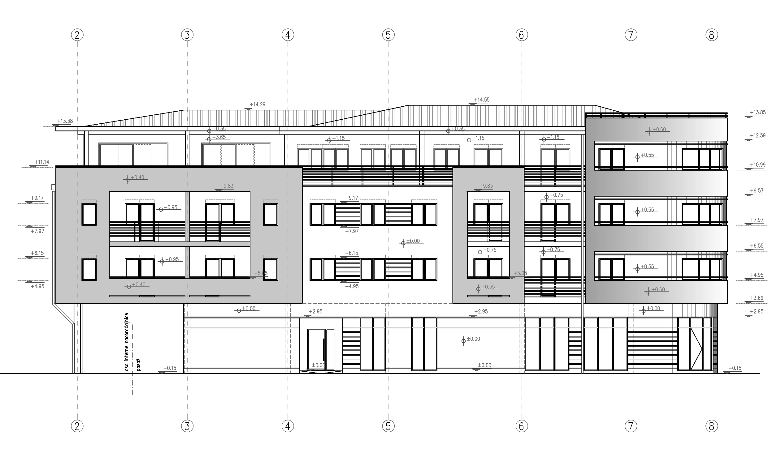
Conceptual design presents an architectural analysis of a plot in Masarikova Street in Šabac, and opportunities for build residential – commercial building. On a plot there is currently a building of the former company, “Decor”, which ceased its activities. It is envisaged the demolition of the building and the establishment of a residential complex floors: basement, ground floor, two floors and subtracted floor. Attractive location in town, vicinity of the park and the corner of two streets, created the conditions for the establishment of a modern, functional and environmentally friendly facility that would, with its apartments structure, meet the requirements of the real estate market in Šabac. The building consists of two lamellae of the same number of floors, which are functionally independent, but visually give the impression of a single object. Main pedestrian entrance is provided from the street, but also from the backyard, since parking in private garages is provided on the ground floor. A garage is formed in the basement, and it is connected to the floors by the staircase and elevator. Commercial area is provided on the ground floor of lamellae A, due to its attractive position.
Year / 2015.














