The position of the site in question in the urban fabric dictated the form of the building. The orientation and shape of the building follow the contour of the plot. The geometry is regular and adapted to the functional requirements of the Investor.
The planned object is in an interrupted sequence. Vehicular and pedestrian access to the building is secured from Vojvode Mišić Street. From this street, you can also access the business space on the ground floor of the building. Parking is provided on the plot, in the open parking lot on the ground floor, and 11 parking spaces have been created, one of which is the space for the disabled.
The building has five floors (basement, ground floor, two floors and detached floor). On the northeast facade, according to the regulation line towards Vojvode Mišića Street, an overhang of 0.6m was designed for the upper floors. Overhangs are not designed on the facades towards neighboring plots.
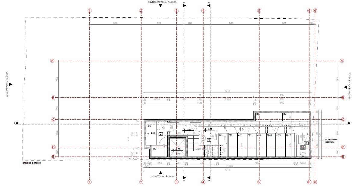
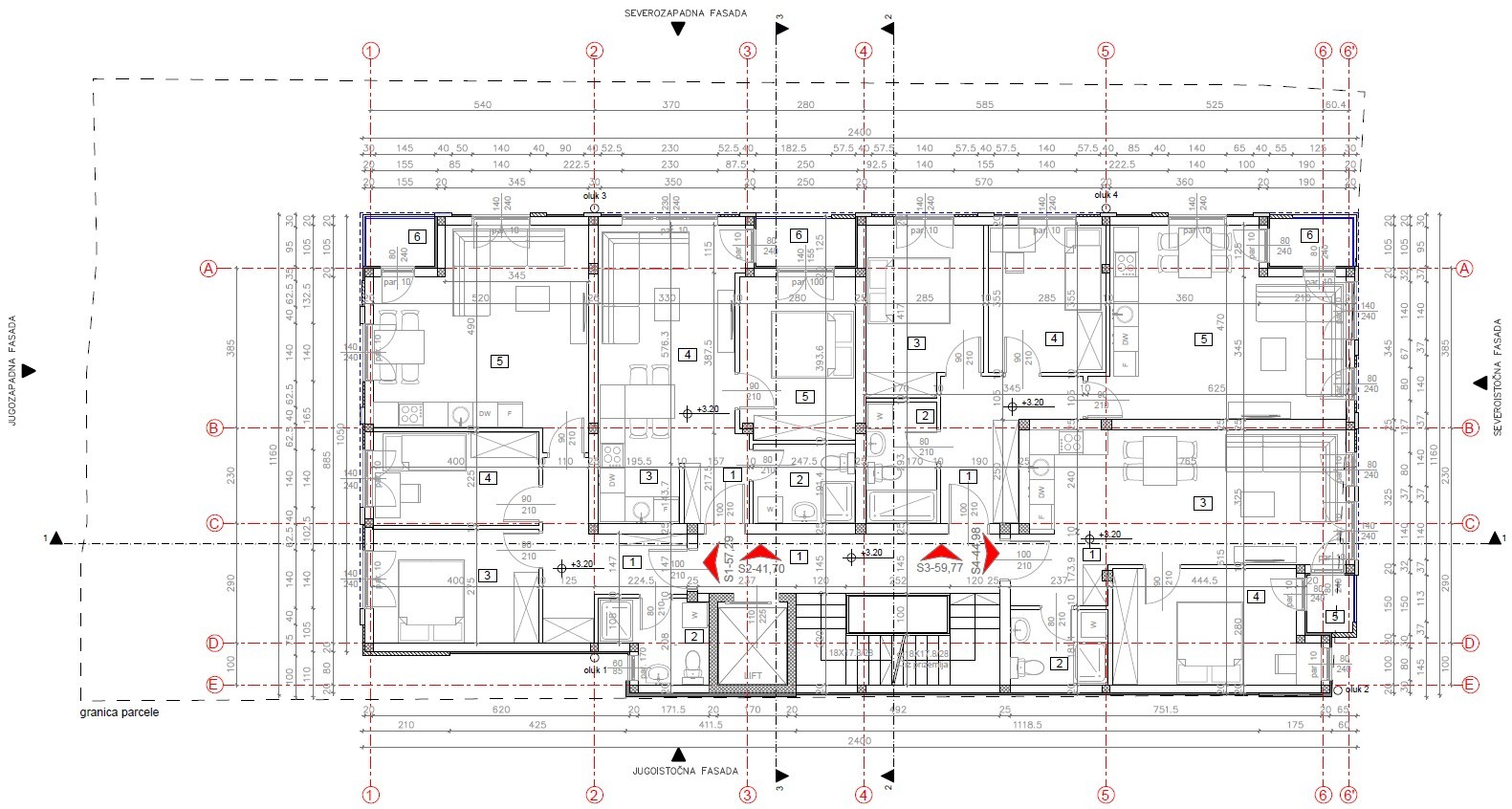
The basement space is intended for tenant storage and technical rooms – a room for water meters and a room for building maintenance. The basement is designed at a level of -2.60m, and is accessed by a central staircase, which is the main vertical communication in the building. There is no elevator station on the basement level. On the ground floor, in addition to the parking space and the car manipulative surface, the main pedestrian entrance to the residential part of the building was formed, with a corresponding part for the installation of electrical cabinets, mailboxes, a staircase and an elevator. A gas boiler room is planned on the ground floor of the building, which is accessed from a common corridor. From Vojvode Mišića Street, there is direct access to the business premises – premises intended for trade. Four two-room or two-and-a-half-room apartments were designed on the first and second floors. Apart from apartment S2, the apartments are oriented on both sides. No facade openings are planned on the southeast facade. Vertical communication consists of a staircase and an electrically powered elevator. Four two-room or two-and-a-half-room apartments were designed on the second floor. Apart from apartment S10, the apartments are oriented on both sides. No facade openings are planned on the southeast facade. On the north-eastern side, the facade canvas is pulled back 150 cm in relation to the facade plateau of the ground floor. This resulted in a roof terrace in apartments S11 and S12.
On the building, a reinforced concrete canopy is planned above the suspended floor, with openings filled with glass. The facade is designed in a regular grid and opening rhythm with a finish in the form of an acrylic facade in white and beige colors, while accented elements and plans are emphasized with HPL panels on the appropriate substructure, and accented verticals are emphasized with travertine stone cladding in shades of brown. The position of facade openings, which are not arranged in the same way on all floors, brings dynamism to the strict grid in white color defined by HPL cladding. The facade carpentry is designed as aluminum, while the profiles are finished anodized in the color of old gold, which contributes to the elegance dictated by the white grids.
Year / 2025









